Sign In or Create a Free Account to see full details of this property
Key Facts
Key facts for 95 Maple Street
Property Type
House, 2-Storey
Parking
Attached 2 garage, 2 parking
MLS #
X12495284
Size
1500-2000 sqft
Basement
Full,Unfinished
Listed on
2025-10-31
Lot size
56 x 104.0
Tax
$1,012 /yr
Days on Market
1
Approximate Age
New
Maintenance Fee
-
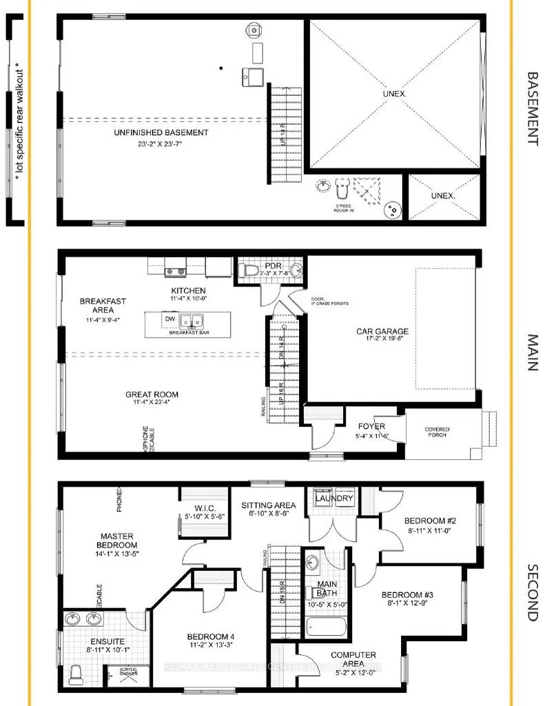
Description
Designed for Modern Family Living. Welcome to the Broderick, a 1,949 sq. ft. two-storey home designed with family living in mind. The open-concept living room and kitchen are beautifully finished with laminate flooring and 9 ceilings, creating a warm and spacious feel. The kitchen is the heart of th...e home, enhanced with quartz countertops for a modern touch. Upstairs, you'll find four bedrooms, including a primary suite with a laminate custom regency-edge countertops with your choice of colour and a tiled shower with acrylic base. Additional thoughtful features include ceramic tile in all baths and the laundry room, a basement 3-piece rough-in, a fully sodded lot, and an HRV system for fresh indoor air. Enjoy easy access to Guelph and Waterloo, while savoring the charm of suburban life.
Similar Properties(No results)
Mortgage Calculator
Calculate your estimated monthly mortgage payment
Price
$839,900
$
%
%
Total cost of mortgage
$0
Monthly payment
By clicking Save, we will calculate your estimated mortgage for all properties using the saved values (down payment percentage, interest rate, and amortization).
The accuracy and applicability of this calculator are not guaranteed.